Wohnpark
Lengede, Am Sandschachtweg
Baubeschreibung
Stand:
29.07.2021
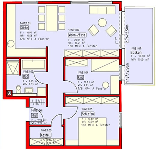
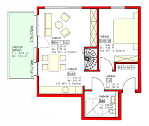
Im Sandschachtweg entstehen zwei Zehn Familien Häuser in exklusiver Architektur und durchdachter Funktionalität 2, 3 und 4-Zimmer Wohnungen
von hoher Wertigkeit geeignet für jeden Lebensabschnitt Eigentumswohnungen zum Kauf.
Schwellenlos
– teilw. Rollstuhlgerecht – Tiefgarage – Aufzug,
großzügige Terrassen und Balkone, Gartenanteil mit Sondernutzung.
Bauherr:
Residenz Bauträger und Finanzservice GmbH
Bierstraße 51
31246 Ilsede
Finanzierung:
Sascha Mattick
Tel: 0151 – 17288147
Verkauf:
Michael Mattick
Tel: 0176 – 434 175 14
Projektleiter:
Michael Mattick
1.ADRESSE:
Sandschachtweg 1b, 1c
38268 Lengede
Flurstück 26/18 Flur 3 Gemarkung Lengede
2. BEBAUBARKEIT
3. LEISTUNGSUMFANG FÜR PLANUNG UND BAULEITUNG
3.1 PLANUNG
3.2 BAUANTRAG / BAUZEICHNUNG / BAULEITUNG
BAUANTRAGSTELLUNG UND GEBÜHREN
Im Preis enthalten.
BAULEITUNG:
3.3 BAUSTELLENEINRICHTUNG
Die Baustelleneinrichtung ist im Leistungsumfang enthalten und wird soweit erforderlich für die Bauzeit vorgehalten. Sie besteht aus:
3.4 ERDARBEITEN
Erdarbeiten sind im Leistungsumfang enthalten. Sie bestehen aus:
3.5 HAUSANSCHLÜSSE
Alle im Leistungsumfang enthaltenen Hausanschlüsse werden in den Technikraum verlegt.
4. ALLGEMEINE ANGABEN ZUM GEBÄUDE
4.1 GEBÄUDE
DIE WOHN- UND NUTZFLÄCHEN
2. 1. OBERGESCHOSS
Lichte
Raumhöhe (Fertigmaß) ca. Wert lt. Bauzeichnung
3. DACHGESCHOSS
Lichte
Raumhöhe (Fertigmaß) ca. Wert lt. Bauzeichnung
4. WÄRMESCHUTZ
Die Ausführung des Wärmeschutzes erfolgt gemäß den Anforderungen der Energiesparverordnung 2016. Das erneuerbare Energie-Gesetz wird eingehalten.
4.1 LUFTDICHTIGKEITSPRÜFUNG (BLOWER DOOR TEST)
Die Luftdichtigkeitsprüfung ist im Leistungsumfang enthalten.
4.2 SCHALLSCHUTZ
Der Schallschutz entspricht der aktuellen DIN 4109 2006 – Vorgaben für Mehrfamilienhäuser.
4.3 LÜFTUNG
Der Umfang der Lüftung entspricht den Anforderungen der Energieeinsparverordnung. In den Bädern, Gäste WC und Abstellräumen ohne
Fenster kommen Entlüftungen rein.
5. ANGABEN ZUM GEBÄUDE ALLGEMEIN
5.1 FUNDAMENTE/BODENPLATTE/KELLER
Konstruktion/Material Schicht unter der Sohlplatte aus Kies/Sand lt. Statik.
Durchbrüche für die Ver- und Entsorgungsleitungen sowie Rohrleitung unter der jeweiligen Bodenplatte/Keller sind im Festpreis enthalten.
FUNDAMENTERDER
Gemäß VDE (Verband der Elektrotechnik)-Vorschrift DIN 18014
5.2 AUSSENWÄNDE IM ERD- UND OBERGESCHOSS, TEILWEISE DACHGESCHOSS
AUSSENWÄNDE
Konstruktion nach Vorgabe der Statik, ENEV und Wärmebedarfsberechnung.
Kalksandstein mit WDVS, Außenputz mit Armierungsgewebe.
Die Außenwände bestehen in allen Geschossen überwiegend aus Kalksandstein. Gemäß Statik. Mit Überdeckungen aller Tür-/Fensteröffnungen mittels Stürzen und Trägern, aus Stahl und Beton hergestellt.
Wärme-Dämmung nach Vorgabe ENEV – aus Hartschaum-Dämmplatten, im Keller und Garagenbereich.
Außenputz (Naturweiß) mit eingebettetem Armierungsgewebe und einem strukturierten Kunstharz-Spachtelputz. Farbliche Applikationen legt der Bauherr gemeinsam mit dem Architekten nach dessen Farbkonzept fest.
Änderung aufgrund der Wärmebedarfsnachweise oder aus gestalterischen Gründen vorbehalten.
5.3 INNENWÄNDE IM ERD- UND OBERGESCHOSS, TEILWEISE DACHGESCHOSS
TRAGENDE WÄNDE TREPPENHAUS, WOHNUNGSTRENNWÄNDE aus Kalksandstein.
TRAGENDE WÄNDE EG, OG SONSTIGE
Material: Kalksandstein
NICHTTRAGENDE WÄNDE IN DEN WOHNUNGEN
Material: Kalksandstein, teilweise als Trockenbau-Gipskarton Konstruktion.
5.4 FUSSBODEN IM ERD-, OBER-, UND DACHGESCHOSS
Zementestrich in schwimmender Verlegung, mit Wärme-/Trittschalldämmung, Randdämmstreifen oder Fließestrich auf wärme Trittschalldämmung.
und Dehnungsfugen nach DIN 18560. Geeignet für die Nutzung als Heizestrich für eine Fußbodenheizung.
Der Fußbodenbelag ist nicht im Leistungsumfang enthalten.
Änderungen aufgrund des ENEV- und des KfW-Nachweises vorbehalten.ng
5.5 DECKE ÜBER KELLERGESCHOSS
Massive Stahlbeton-Fertigteildecken entsprechend der statischen Berechnung inkl. Aussparung der erforderlichen Durchbrüche gemäß Bauabsprache. Über-/Unterzüge gem. Statik als Stahlträger oder Stahlbetonbalken liefern und einbauen. Ringanker gem. Statik liefern und einbauen. Unterseitig, nach Bedarf und Energieeinsparverordnung.
5.6 DECKE ÜBER ERDGESCHOSS UND OBERGESCHOSS
Massive Stahlbeton-Fertigteildecken entsprechend der statischen Berechnung mit unterseitigem Sichtbeton eingebaut. Die Stoßfugen der Decken werden
verspachtelt und vorbereitet für mittel- bis grob strukturierte Rauhfaser-/Tapeten. Inkl. Aussparung der erforderlichen Durchbrüche gemäß
Bauabsprache. Über-/Unterzüge gem. Statik als Stahlträger oder Stahlbetonbalken liefern und einbauen. Ringanker gem. Statik liefern und einbauen.
5.7 DECKE ÜBER DACHGESCHOSS, ZUM SPITZBODEN/DACHRAUM
Spitzboden: (Studio) Holzbalken, Dämmung lt. Energieausweis und Dampfsperre.
6.DACH
DACHAUFBAU SATTELDACH
DACHAUFBAU FLACHDACH
Betondecke mit oben liegender Isolierung, Schweißbahn, Rinne und Ablauf Kopfseitig.
Dämmung lt. Energieausweis(en) und Schweißbahn.
DACHENTWÄSSERUNG UND DACH-ANSCHLÜSSE
7. FASSADE
Siehe Außenwand, oben.
8. FENSTER
FENSTER IM ERD-, OBER UND DACHGESCHOSS
Gemäß Vorgabe ENEV-/ Material der Fensterrahmen und –Flügel: Kunststoffprofil, Mehr-Kammer System, Schallschutzklasse 2, Einbruchschutz WK 1, RAL-Geprüft. Farbe: weiß
ÖFFNUNGSRICHTUNG/ ÖFFNUNGSART / BESONDERHEITEN
Fenster mit Dreh/Kippflügeln, Öffnungsflügel werden raumweise bei der Bemusterung festgelegt, Höhe der Griffe am Fenster können variieren.
VERGLASUNG
3-fach Isolierglas
FENSTERBÄNKE
Innenfensterbänke in Marmor, es stehen 3 Sorten zur Auswahl. Außenfensterbänke aus Aluminium, akustisch entkoppelt.
Bodentiefe Fenster in OG/DG werden auf Brüstungshöhe geteilt, Unterteil Festelement, Oberteil Dreh/Kipp (ausgenommen ggf. Terrassen/Balkontüren) Grundsätzlich nach dem Gestaltungskonzept des Architekten.
ROLLLÄDEN
Mechanische Rollläden der Fenster in den Wohnungen enthalten. Gegen Aufpreis elektrisch ausführbar. Rollladenpanzer: Alu ausgeschäumt isoliert.
9. AUSSENTÜREN
HAUSTÜR MFH
1x Hauseingangstür weiß, mit Glasausschnitt, Briefkastenanlage im Eingangsbereich Gegensprechanlage Haustür zur Wohnungseingangstür. Videobasierte Gegensprechanlage ist im LU enthalten.
10. INNENTÜREN
Röhrenspankerntüren, Zarge mit runder Kante; Türblatt laminiert, weiß.
Buntbartschloss und Drückergarnitur in Edelstahl Standard.
Wohnungseingangstür als verstärkte Ausführung gem. DIN-Vorgaben mit Laminatoberfläche als Schallschutzelement in Weiß, Wechselgriffgarnitur in Edelstahl Standard.
11. TREPPEN / TREPPENHÄUSER/FAHRSTÜHLE
11.1 TREPPE / TREPPENHAUS
Stahlbetontreppe vom KG bis DG. Geländer in Stahl, lackiert (Farbton nach Farbkonzept des Architekten). Handläufe im Treppenaufgang nach Vorschrift. Wandflächen im Treppenhaus gestrichen, nach dem Farbkonzept des Architekten.
AUFZUG
1x Personenaufzug nach EN 81-1:98
11.2 Treppe Dachgeschoss zum Studio
Stahlharfentreppe grundiert mit Buchenholztrittstufen.
12. ELEKTROARBEITEN/ROHINSTALLATION
Die elektrischen Kabel- und Leitungsanlagen werden gemäß DIN 18382 verlegt. Die Stromversorgung erfolgt durch die Stadtwerke. Nicht sichtbare Leitungsverlegung unter Putz (UP) in allen Wohngeschossen nach aktuellen VDE und EVU Richtlinien.
Der Zählerschrank und 1 Unterverteiler für Allgemeinstrom befinden sich im Kellergeschoss.
Je eine Unterverteilung mit Absicherung der einzelnen Stromkreise und Fehlerstromschutzschalter (FI) Überspannungsschutz und Leitungsschutzschalter in ausreichender Anzahl befindet sich im Hauswirtschaftsraum in den Wohnungen.
Je Wohnung sind 20 (2 Zimmer) 25 (3 Zimmer) und 30 (4 Zimmer) Steckdosen zur freien Bemusterung enthalten, zuzüglich Anschlüsse für Herd, Dunstabzugshaube (Umluft), Geschirrspüler und Kondenstrockner.
Jedes Zimmer erhält einen Decken-Lichtauslass, dass Wohnzimmer 2, der Balkon/die Terrasse je 1 Lampenauslass und 1 Steckdose.
Im Kellergeschoss und in den Garagen werden Leitungen bzw. Schalter und Steckdosen auf Putz (AP) verlegt.
•Sprechanlage mit Briefkastenanlage (weiß) Videogegensprechanlage, freisprechend ohne Hörer, Türöffner neben der Wohnungseingangstür.
•Heizungsraum:
1 Leuchte (z.B. Schiffsarmatur) mit Schalter und Steckdosen bzw. Anschlüsse für die technischen Anlagen auf Allgemeinstrom.
•Kellerflur:
Leuchten (z.B. Schiffsarmatur), gemeinsam schaltbar über 1 Schalter auf Allgemeinstrom.
•Tiefgarage:
Leuchten (z.B. Led Wannenleuchten) ist zeitgesteuert und erfolgt über Bewegungsmelder. (Allgemeinstrom)
•Wohnungseigene Kellerräume:
je 1 Leuchte (z.B. Schiffsarmatur) mit 1 Schalter und 1 Steckdose, der Strom dafür wird abgerechnet über die jeweiligen Wohnungszähler.
•Treppenhaus:
Alle Leitungen werden unter Putz gelegt. Die Treppenhausbeleuchtung (Allgemeinstrom) ist zeitgesteuert und erfolgt über Wand- und Deckenleuchte pro Etage, geschaltet über Bewegungsmelder. Für jede Wohnung ist jeweils 1 Klingeltaster neben den Wohnungseingangstüren vorgesehen.
•Rauchmelder
Es werden Rauchmelder (weiß) in den Schlafräumen und in dem Flur eingebaut.
• Außenanlage (allgemein)
Beleuchtung der Zuwegung und des Hauseingangs mit Wandleuchten und Pollerleuchten über Bewegungsmeldern in der erforderlichen Anzahl (Allgemeinstrom), gemäß Auswahl des Bauherrn/Architekten. Die Ausstattung richtet sich weites gehend der RAL-RG 678.
13. HEIZUNGSINSTALLATION
Für das Gebäude wird eine Wärmebedarfsberechnung nach DIN EN 12831 durchgeführt (Bauseits) als Grundlage für die Dimensionierung bzw. Bemessung der Heizanlage und der Fußbodenheizung. Das Haus wird mit einer anforderungsgerechten Gas Brennwerttherme neuester Bauart ausgestattet. Eine Thermosolaranlage mit Flachkollektoren auf der Dachfläche unterstützt die Warmwasseraufbereitung und die Heizung, Dimensionierung nach Wärme schutznachweis (Bauseits). Die Steuerung der Heizanlage erfolgt zentral witterungs- und zeitgeführt. Die Wärmeverteilung erfolgt über ein Rohrsystem aus Metallverbundrohren. Alle Wohnungen erhalten eine Fußbodenheizung mit Fußbodenheizkreisen je Raum und Raumregelung mit energiesparenden Thermostatventilen, nach Wärmebedarf dimensioniert und angeordnet.
Ausnahme:
In div. Wohnungen erhalten Küche, Ess- und Wohnzimmer einen gemeinsamen Heizungskreisregler, Die Rohrleitungen für die Fußbodenheizung werden in
hochwertigen, diffusionsdichten Kunststoffrohren als Metallverbundrohr verlegt. Der Unterverteiler befindet sich im Hauswirtschaftsraum. Durch die Zuleitungen der Wohnräume braucht der HWR und der Flur evtl. keinen eigenen Heizkreislauf. er wird automatisch mit beheizt durch die anderen Zuleitungen.
Die Wärmedämmung der Heizungsleitungen und der Kesselanlage erfolgt nach Energieeinsparungsgesetz und Heizungsanlagenverordnung. Die Abrechnung der Heizkosten erfolgt über angemietete elektronische Durchfluss-Wärmemengenzähler, die im Heizungsverteiler (Hauswirtschaftsraum) für jede Wohnung eingebaut werden.
Der Kamin mit dem säurebeständigen Abgasrohr für den Gasbrennwertkessel wird bis über die Dachfläche nach oben geführt. Er ist nicht für den Betrieb von
Holzöfen ausgelegt.
Die Heizungsanlage für beide Häuser befindet sich in Haus 1. in Haus 2 wird kein Schornstein eingebaut.
14. SANITÄRINSTALLATION/ROHINSTALLATION
14.1 INSTALLATION
ABFLUSSROHRE
Schallgedämmte Schmutzwasserleitungen für die Hauptfallleitungen, Kunststoffrohr für Verteil-, Sammel- und Einzelanbindeleitungen.
WARM- UND KALTWASSERLEITUNGEN
Als Mehrschicht Verbundrohr. Dämmung der Warmwasserleitung gemäß ENEV. Separate Wasserzähler für Warm und Kaltwasser
VERLEGEART DER WASSERLEITUNGEN Wohnräume unter Putz bzw. in der Trockenwand
AUSSTATTUNG DER INSTALLATION:
Feinfilter:
ja 1 x gemeinschaftlich
Druckminderer:
gemeinschaftlich, wenn erforderlich kombinierte Kalt-/Warmwasserzapfstellen: ja Außenzapfstellen Anzahl: 1 je Erdgeschosswohnung und Dachgeschosswohnung mit Dachterrasse.
Waschmaschinenanschluss: je Wohneinheit 1 x
Spülmaschinenanschluss Küche: je Wohneinheit 1 x
Kondenstrockneranschluss je Wohneinheit 1 x

14.2 SANITÄROBJEKTE UND ARMATUREN
Als Sanitärobjekte vorgesehen sind, pro Wohnung:
1x Badewanne, weiß, ca. 170 cm x 75 cm
1x Waschtisch, Porzellan, weiß, ca. 60 x 45 cm; bei Ausführung mit Gäste-WC: in demselben ein Handwaschbecken, Porzellan, ca. 50 x 35 cm (je nach örtlichen Möglichkeiten auch kleiner), weiß. Modellgleich. Immer mit 1-Hand Waschtischarmatur, verchromt mit Zugablaufgarnitur.
1x Hänge-WC, Porzellan weiß, inklusive Unterputzspülkasten mit Betätigungsplatte

fü 2 Mengenspülung, weiß, WC-Sitz mit Absenkautomatik; bei Ausführung mit Gäste-WC ein weiteres, gleichartiges.-in-lengede.com
Dusche:
Flache Duschtasse mit Bodenablauf, 1-Hand-Aufputz Duscharmatur mit Duschstange 100 cm, verstellbar, mit Seifenschale, Handbrause mit 3-fach
Strahlverstellung und Schlauch. Alternativ, können Sie eine Bodenebene Dusche gegen Aufpreis erhalten ca. 90 cm x 90 cm Duschkabine (Glas oder Kunststoff Trennwand) nicht enthalten.
14.3 REGENWASSERENTWÄSSERUNG
Anschluss an die öffentliche Kanalisation. Die Drain Rinne der Rampe ist an einem Pumpenschacht angeschlossen, dieser hat eine Pumpe mit Signal.
Das Schmutzwasser und das Regenwasser wird über das Grundstück (Haus 3 + 4) in das öffentliche Netz eingeleitet.
15. INNENAUSBAU UND -AUSSTATTUNG ALLGEMEIN
15.1 DECKENFLÄCHEN
Oberflächen Qualität Q 2, vorbereitet für das Tapezieren mit mittel- bis grob strukturierten Raufaser- / Tapeten
15.2 WANDFLÄCHEN
Oberfläche in Qualität Q 2, vorbereitet für das Tapezieren mit mittel- bis grob strukturierten Raufaser- / Tapeten
15.3 PUTZARBEITEN
Innenputz an gemauerten Wänden: Gipsputz, Oberfläche in Qualität Q 2, vorbereitet für mittel- bis grob strukturierte Rauhfaser- / Tapeten.
15.4 FLIESEN- UND NATURSTEINBELÄGE, LAMINAT
Im Wohnungspreis sind Fliesenarbeiten im Bereich Bad: Fußboden, Dusche Deckenhoch, übrige Wandflächen ca. 1,20 – 1,4 m hoch.
Gäste WC: Fußboden mit Sockelfliese, Waschbecken Fliesenspiegel ca. 0,60 m x 0,80 m.
WC: Spülkasten eingefliest.
Küche: Fußboden mit Sockelfliese, Materialwert für die Fliesen 30 € je qm, inklusive MwSt. Die Fliesen kann sich der Käufer in einem Geschäft Fliesengeschäft welches von der Firma Residenz bekannt gegeben wird aussuchen. Nach einem Info-Gespräch mit unserem Fliesenleger ermittelt dieser den Fliesenbedarf.
Materialwert für die Fliesen 30 € je qm, inklusive MwSt., frei Baustelle. Kleber, Fugenmaterial, Silikon und Eckschienen aus Kunststoff sind im Preis enthalten, Alu- oder Edelstahlschienen gegen Aufpreis möglich.
Rückerstattung von Minderbeträgen bei Auswahl der Fliesen wird nicht gewährt.
Der Arbeitslohn ist kalkuliert für Fliesen der Größe bis 60 x 60 cm. Für großformatigere Fliesen sowie Sonderverlegung z.B. Diagonal wird ein Aufpreis je nach Aufwand berechnet. Diese werden vor Ausführung der Fliesenarbeiten schriftlich angeboten und sind durch den Käufer vor Beginn der Arbeiten zu bestätigen.
Sockelleisten werden aus der Fliese geschnitten, auf Wunsch können gegen Aufpreis Sockelleisten bestellt oder durch Käufer geliefert werden.
Andere Bodenbeläge sind nicht enthalten und ggf. gegen Mehrpreis ausführbar.
Die Balkone und Terrassen erhalten Plattenbelag 50 X 50 auf Stelzen oder Splitbeton. Betonplatte 50 X 50 grau, gegen Aufpreis auch andere Platten möglich. Die Fliesen und Platten kann sich der Käufer in verschiedenen Geschäften aussuchen.
Die Geschäfte teilen wir den Kunden separat mit.
16. AUSSENANLAGEN
16.1 BALKONGELÄNDER
Stahlverzinkt mit Milchglasscheiben oder anderem Plattenmaterial nach Gestaltungskonzept des Architekten.
16.2 PARKPLATZ / WEGEFLÄCHEN
Geh- /Fahrflächen und Stellplätze gepflastert mit Betonsteinpflaster oder Betonplatten.
Standort Müllcontainer ebenfalls gepflastert oder mit Betonplatten. Je nach Vorgaben der Bau- und Entwässerungsgenehmigung werden ggf.
Teilflächen mit sickerfähigem Pflaster oder Sickermulden ausgeführt. Die EG Wohnungen stellen Ihre Abfalltonnen in den eigenen Gartenanteil.
Die Garagenzufahrt hat an den Seiten Betonwinkel und ist mit versickerungsfähigen Verbundpflaster belegt.
Die Zuwegung an der Nordseite kann von den Eigentümern der Erdgeschosswohnungen mit Gartenanteil Haus 3 und 4 mit benutzt werden.
Der Wirtschaftsweg an der Südseite wird als Mineralische Oberfläche ausgeführt, kein Verbundpflaster.
Eine Bepflanzung nach Bebauungsplan ist zwingend notwendig.
Je Wohnung ist 1 Stellplatz in der Tiefgaragenanlage vorgesehen, der entsprechend zu kaufen ist. Weitere stehen zum Kauf zur Verfügung im Außenbereich. Der Zwischentrakt von der Tiefgarage ist überdacht und begrünt, abweichend von den Zeichnungen.
16.3
Gartenanteile mit Sondernutzung.
Die Feuerwehrzufahrt befindet sich über die Gärten der Südseite wie Lageplan. Hier müssen wir die Teilflächen mit Progrid Kunstoffpflaster pflastern oder Gleichwertig, Zäune und Abgrenzungen müssen so gestaltet werden, dass die Feuerwehr jederzeit durchfahren kann. Alle Wohnungen mit Gartenanteil dürfen sich ein baugenhmigungsfreies Gartenhaus aufstellen.
17. Sonstiges
Bei der Herstellung des Gebäudes werden die allgemeinen und aktuellen Regeln der Bautechnik angewendet. Grundlage sind ebenso alle Herstellerrichtlinien sowie die Regelungen der geltenden Landesbauordnung. Es gilt der Bebauungsplan oder die entsprechende Örtliche Festlegung für das betreffende Baugrundstück.
Änderungen aus Planungs- behördlichen und technischen Gründen bleiben vorbehalten. Angegebene Werte in dieser Bauleistungsbeschreibung sind ca. Werte. Für Verschleißteile wie Schalter, Armaturen, Fenster und Türbeschläge usw. wird eine Gewährleistung von zwei Jahren vereinbart. Schwund und Haarrisse in den tragenden Konstruktionen und dort, wo verschiedene Materialien zusammentreffen, sind konstruktionsbedingt und gelten nicht als Mangel.
Wartungsfugen unterliegen nicht der Gewährleistung.
Frostschäden die nicht auf Materialfehler oder fehlerhaften Einbau zurückzuführen sind, unterliegen nicht der Gewährleistung. Verlangt der Käufer eine Baufortführung, z.B. aus eigenen Terminen, obwohl eine Behinderungsanzeige (z.B. Witterung) vorliegt, und könnten diese durch erhöhten Aufwand durch zusätzliche Heizung oder Trocknung oder sonstige Maßnahmen durchgeführt werden, so sind die nachzuweisenden Kosten durch den Käufer zu tragen, hierzu–darf es im konkreten Fall des schriftlichen Angebotes über die Zusatzkosten und der vorhergehenden Bestätigung durch den Käufer.
Vor dem Aufbau von Küchen, Möbeln und Bildern ist die Restfeuchte der geputzten Wände zu prüfen, um Stockflecken oder sonstige Feuchteschäden zu vermeiden.
Diese Bau- und Leistungsbeschreibung mit Zeichnungen wird Bestandteil des Vertrages.
Gewährleistung nach BGB: 5 Jahre.